🏡 ☀️ Villa da Sogno in Classe A4: Il Futuro della Vostra Famiglia Inizia Qui!
Stai cercando la casa definitiva per la tua famiglia? Quella che combina lusso, spazi generosi, e un risparmio energetico mai visto? Smetti di sognare e preparati a vivere in questa villa di nuova costruzione.
✨ Il Lusso di Vivere Green.
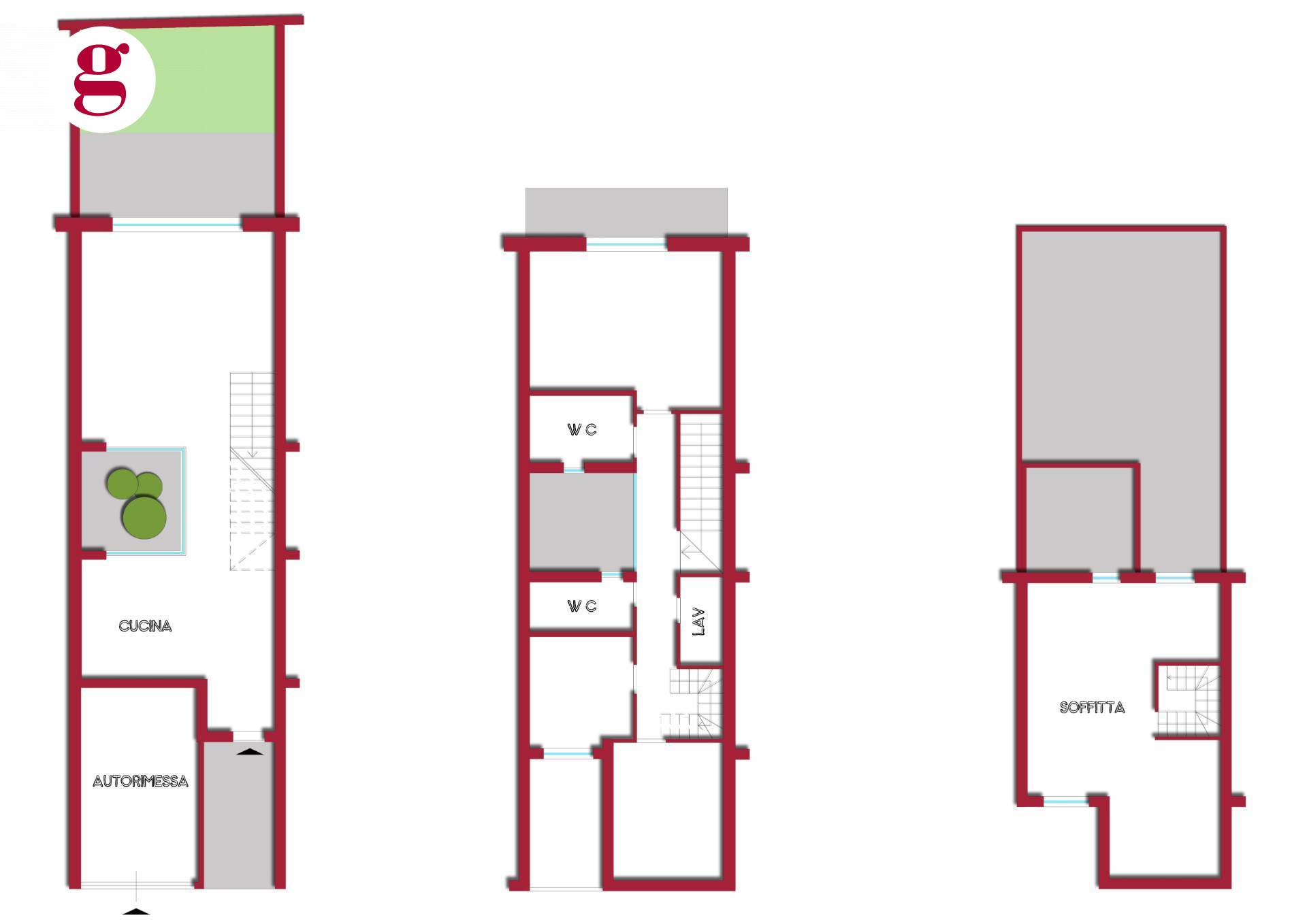
Questa casa da sogno, di circa 200 mq commerciali è la massima espressione dell'efficienza energetica (Classe A4). Dimentica bollette salate: grazie ai Pannelli Fotovoltaici, all'isolamento termico superiore e al Riscaldamento a Pavimento (con predisposizione per il raffreddamento), la tua famiglia vivrà in un comfort climatico perfetto tutto l'anno, rispettando l'ambiente e il tuo portafoglio.
👨👩👧👦 Spazi Pensati per Voi. La villa è distribuita su 3 livelli ed è progettata per il benessere di ogni membro della famiglia: