LARES S.r.l.

Villa - Vasto Paese a Vasto
Codice: IM202550

Villa - Vasto Paese in Vendita a Vasto

7 Camere
5 Bagni
718 mq
€ 990.000

Eleganza e spazio senza confini: splendida Villa indipendente in Vendita a Vasto a due passi dal centro storico

Sogni una casa dove ogni dettaglio parla di comfort e prestigio?
A Vasto, nella tranquilla e servita Via Silvio Pellico, a pochi passi dal centro storico, sorge questa magnifica Villa unifamiliare che aspetta solo di essere vissuta.
Immagina di tornare a casa e lasciare il mondo fuori, accolto da 605 mq di pura eleganza, distribuiti intelligentemente su quattro livelli.

La ristrutturazione completa del 2006 ha trasformato questa dimora in un gioiello di funzionalità, con finiture di pregio e un pratico ascensore interno che rende ogni spostamento un piacere.
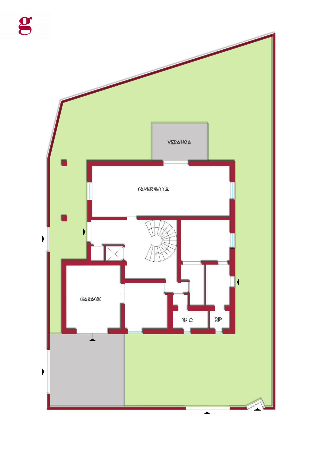
Il cuore pulsante della Villa è la splendida taverna al piano terra: un ambiente caldo e conviviale con una caratteristica cucina in muratura e un maestoso camino, ideale per cene in famiglia o serate con gli amici.
Da qui, l'accesso diretto alla veranda ti proietta nell'area esterna privata di 280 mq, un'oasi di pace dove godersi le belle giornate.
La zona notte, con le sue 5 camere da letto e 5 bagni, garantisce a ogni membro della famiglia privacy e comfort assoluti.
Completa la proprietà un indispensabile garage di 28 mq.

I pavimenti in granito rosa e parquet, gli infissi con vetri antisfondamento e le tapparelle telecomandate e le finiture di pregio, concorrono a rendere la soluzione unica nella zona.

La prestigiosa location permette di essere vicini ai principali servizi e alla centralissima Piazza Rossetti.

Non perdere l'opportunità di acquistare questa splendida Villa, una vera e propria oasi di comfort, privacy e relax, a Vasto Città e vivere il sogno di una vita in una delle zone più esclusive della città.

Classe energetica: D EP glnr: 54.26 kwh/㎡
Dettagli Immobile
Indirizzo Via Silvio Pellico, 5
CAP 66054
Camere 7
Bagni 5
Locali 9
Stato conservazione Ottimo
Piano Multipiano
Piani totali 4
Ascensore Si
Assenza barriere architettoniche Si
Infissi Legno doppio vetro
Termosifoni Alluminio
Anno di costruzione 2006
Stato attuale Libero al rogito
Balconi Presente
Terrazzo Presente
Giardino Privato
Cucina Abitabile
Box Singolo
Posizione Centrale
TerrazzaSi
Antenna TvAutonoma
RipostiglioSi
CaminoSi
Aria CondizionataSi
ParquetSi
Infissi in legnoSi
Nelle vicinanze
Palestre
Centri Benessere
Campi da Calcio
Complessi Sportivi
Parchi Giochi
Trasporti Pubblici
Asilo
Scuole Elementari
Scuole Medie
Scuole Superiori
Bar
Uffici comunali

Planimetrie
#
#
#
#
Mappa
Virtual tour immobile
Gabetti Vasto
Gabetti Vasto

P.IVA: 03175690654

vasto@gabetti.it
0873365974
Seguici
Contattaci


Menu
Ricerca
Chiamaci
Scrivici