LARES S.r.l.

Stabile/Palazzo - Vasto Paese a Vasto
Codice: IM202552

Stabile/Palazzo - Vasto Paese in Vendita a Vasto

10 Camere
5 Bagni
498 mq
€ 480.000

Intero stabile in Vendita con 5 appartamenti, garage e ampio spazio esterno – occasione unica per investitori e privati

Se stai cercando un immobile che unisca potenziale, posizione e solidità strutturale, questa è un'opportunità da non perdere.
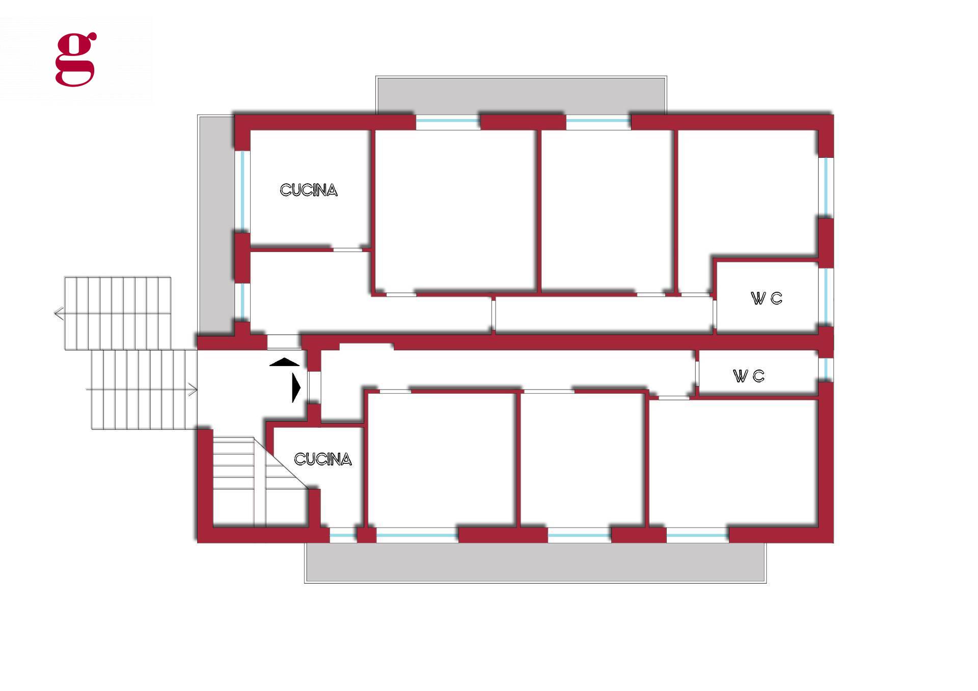
Lo stabile, disposto su più livelli, si compone di 5 appartamenti, un garage e un'area esterna di circa 580 mq, perfetta per ricavare posti auto, zone verdi o spazi comuni da vivere al meglio.
Nello specifico al piano seminterrato/terra troviamo un appartamento di circa 92 mq e un garage di circa 75 mq, al piano rialzato due appartamenti della metratura complessiva di circa 169 mq, al primo piano altri due trilocali rispettivamente di 89 mq e di 80 mq.
Il fabbricato nasce alla fine degli anni '60 e nel corso degli anni sono stati realizzati interventi volto a migliorare l'estetica e la funzionalità.
Esternamente si presenta in buone condizioni, mentre gli interni richiedono un intervento di ristrutturazione: un aspetto che rappresenta un vero valore aggiunto, perché ti permette di personalizzare gli ambienti e valorizzare al massimo il potenziale dell'edificio.

Perché è interessante?

  • Per investitori: la struttura si presta a più soluzioni, dalla creazione di più unità indipendenti destinate alla locazione, fino a un progetto di frazionamento e riVendita.
  • Per privati: ideale per chi desidera una bifamiliare o una villa unifamiliare di ampia metratura, con la possibilità di adattarla alle proprie esigenze abitative.

La posizione strategica e la presenza di un'ampia area esterna rendono questo stabile un immobile versatile e con grandi prospettive di valorizzazione.

Contattaci per saperne di più o fissare una visita: il tuo prossimo progetto immobiliare potrebbe iniziare proprio qui.

Classe energetica: G
Dettagli Immobile
Indirizzo Corso Mazzini, 366
CAP 66054
Camere 10
Bagni 5
Locali 16
Stato conservazione Discreto
Piano Multipiano
Piani totali 3
Posto auto Scoperto
Infissi Legno
Appartamenti Totali 5
Anno di costruzione 1967
Stato attuale Libero al rogito
Esposizione Est - ovest - sud - nord
Balconi Presente, 56 mq
Giardino Privato
Cucina Angolo cottura
Box Triplo, 75 mq
Posizione Zona residenziale
Antenna TvCondominiale
RipostiglioSi
Aria CondizionataSi
Infissi in legnoSi
Nelle vicinanze
Campi da Calcio
Complessi Sportivi
Campi da Tennis
Piste Ciclabili
Parchi Giochi
Trasporti Pubblici
Asilo
Scuole Superiori
Bar
Centri commerciali

Planimetrie
#
#
#
Mappa
Video immobile
#
Virtual tour immobile
Gabetti Vasto
Gabetti Vasto

P.IVA: 03175690654

vasto@gabetti.it
0873365974
Seguici
Contattaci


Menu
Ricerca
Chiamaci
Scrivici