LARES S.r.l.

Capannone a Casalbordino
Codice: IM20261

Capannone in Vendita a Casalbordino

1.115 mq
€ 399.000

Strategico Complesso Industriale - Artigianale a Casalbordino – A 500m dal Casello A14 Vasto Nord
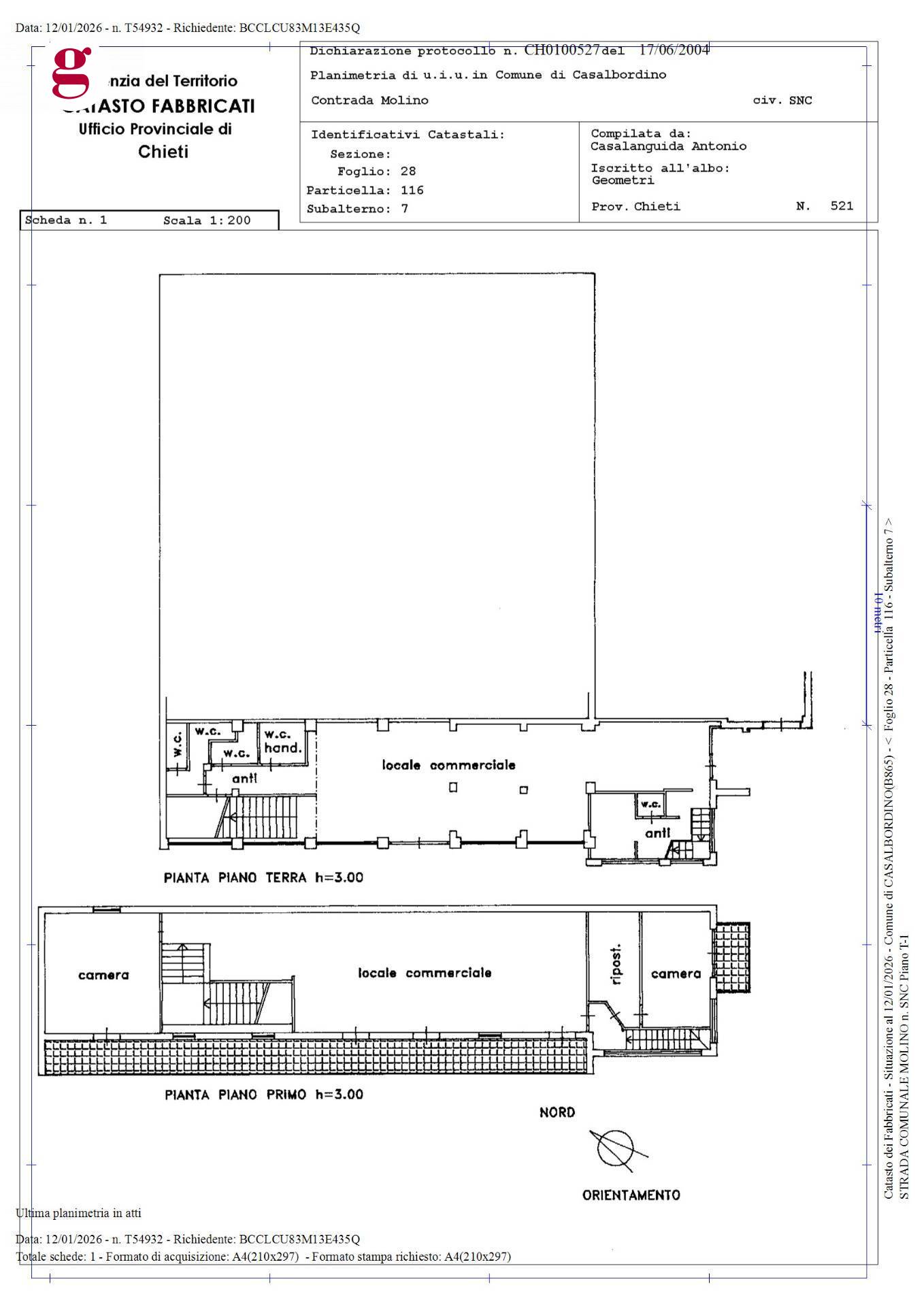
Descrizione: Proponiamo in Vendita un'opportunità immobiliare strategica per aziende che ricercano massima visibilità e logistica d'eccellenza. Situato in posizione privilegiata a Casalbordino, a pochissima distanza dal casello autostradale A14 (Vasto Nord/Casalbordino), il complesso si sviluppa su un'area totale di grande respiro.
La proprietà è così composta:

  • Corpo Principale (Capannone): 600 mq di area produttiva ottimamente distribuita.
  • Locali Magazzino: Ulteriori 280 mq ideali per stoccaggio merci o lavorazioni accessorie.
  • Area Direzionale ed Espositiva: Palazzina uffici di 235 mq totali, comprensiva di un luminoso locale esposizione/showroom per accogliere clienti e partner.
  • Area Esterna: Ampio piazzale di 3000 mq che garantisce facilità di manovra per mezzi pesanti, ampi parcheggi e possibilità di stoccaggio all'aperto.
Punti di forza:
  • Vicinanza immediata allo snodo autostradale.
  • Versatilità degli spazi (Produzione + Magazzino + Showroom).
  • Ampia area esterna recintata.
Ideale per logistica, piccola industria o centri distribuzione. Contattaci per una visita e per scoprire il potenziale del tuo prossimo quartier generale.

Classe energetica: NA - Non Applicabile
Dettagli Immobile
Indirizzo Contrada Mulino, snc
Stato conservazione Da ripulire
Nelle vicinanze
Trasporti Pubblici

Planimetrie
#
#
#
#
Mappa
Gabetti Vasto
Gabetti Vasto

P.IVA: 03175690654

vasto@gabetti.it
0873365974
Seguici
Contattaci


Menu
Ricerca
Chiamaci
Scrivici